850 W Superior St, Chicago, IL, 60642
River West has become one of the most hip and trendy neighborhoods in Chicago. With its walkability, amazing residential buildings, and fashionable restaurants and nightlife, this area is attracting people of all ages from across Chicago. This facility is in great proximity to Fulton Market, generating a high volume of take-out orders as walk-in traffic peaks during market hours. Located near West Chicago Ave, this facility also benefits from a larger delivery radius with quick access to other parts of town.
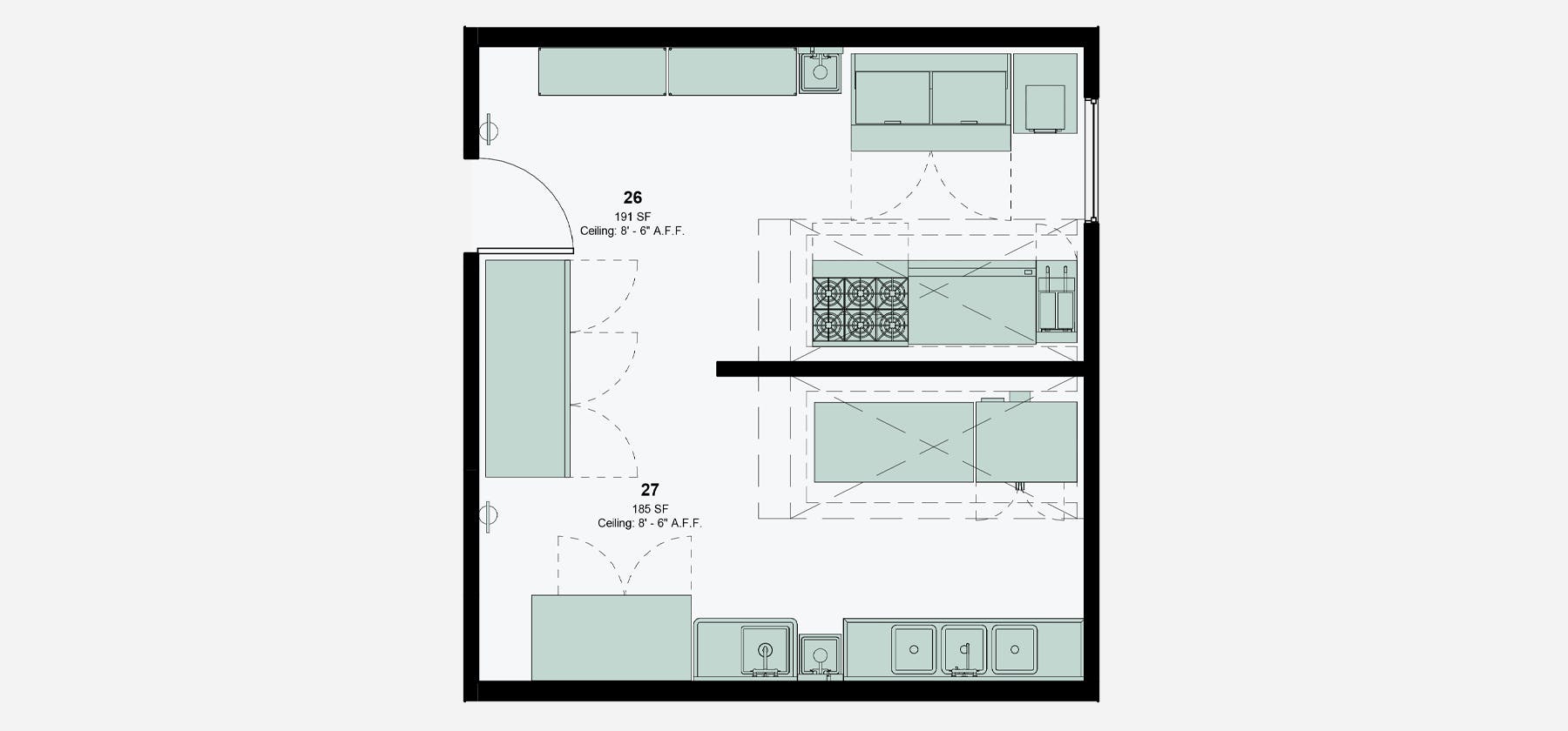
We design floorplans to match your workflow — optimized for efficiency, flexibility, and smooth operations.

Choose a layout that fits your operation—from a single kitchen to a fully custom build.
Every kitchen comes with the space, services, and essentials you need to operate.
Private kitchen
Driver pickup area
Staff locker area
Restrooms
Mop wash
Order pickup & processing
Safety & health inspections
Cleaning & maintenance
Courier handoff
Delivery software
Delivery logistics
Extraction & ventilation
On-site support staff
3 compartment sink
Prep sink
Hand sink
Commercial hood
Tablet
Grease-trap / interceptor*
Gas points
Power outlets
High power lighting
Cold & hot water lines
Gas / fire safety system
WiFi
Trash / recycle
Ethernet connections
Grease / trap cleaning
Hood / flue cleaning
Pest control
From startup to scale-up, we support kitchens handling thousands of orders weekly — with flexible, cap-free infrastructure.
Loading map...
Pay only for space you need, compared to 2000 ft2 at a traditional restaurant and get cooking in weeks, not months.